About the New Clinic
* Current clinic plans. Subject to change.
About the Clinic
Great Divide Ski Area, just 30 minutes from Helena, offers wonderful lodges, good food and ski and snowboard area services such as lessons, rental equipment and repairs Great Divide Montana - Helena’s Local Ski Area (skigd.com)
The Ski Area and Ski Patrol
The federal charter of the National Ski Patrol (NSP) requires the ski area and ski patrol be separate entities. This makes sense in that ski patrol outdoor emergency services are provided by a non-profit affiliate of the NSP. The Great Divide Ski Patrol (GDSP) is a subsidiary of NSP. The GDSP is organized and trained specifically to provide NSP-level services at the Great Divide Ski Area.
The all-volunteer GDSP never charges for its services and never will. GDSP provides emergency care, assessment and medical equipment used to help stabilize injuries. Our services are provided through volunteers and are completely supported by your donations. You can help the Great Divide Ski Patrol Foundation here.
The Great Divide Ski Patrol Foundation
When we recognized the need for a new facility for ski patrol services, the GDSP members created a new, local charitable 501 (C)(3) non-profit charitable organization, the GDSP Foundation (the Foundation) to make sure the building and equipment remained locally owned.
Foundation members are ski patrollers and other community supporters who care about helping keep fun safe at Great Divide. There are no national nor regional interests in the Foundation. The Foundation Board are all local volunteers, and the Foundation is organized to serve the needs at the GDSP… You can help keep fun safe on the hill by donating here.
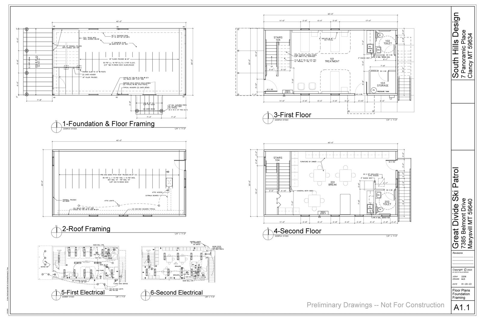
The New Clinic Building
We thank Ace Roofing for providing significant help in constructing the new clinic. As a result, we are referring to the building as the Ace Roofing Ski Patrol Clinic at Great Divide.
- The new Ace Roofing Ski Patrol Clinic at Great Divide will offer ski-in toboggan access. The transfer of injured skiers and boarders will be much more safe and comfortable.
- The new Ace Roofing Ski Patrol Clinic at Great Divide will offer same-level ambulance access. No more carrying injured people down steps or down the slope for transportation.
- The new Ace Roofing Ski Patrol Clinic at Great Divide will offer bathrooms – for patrollers, it means we won’t have to go to another building to wash our hands in between helping injured people.
- The new Ace Roofing Ski Patrol Clinic at Great Divide will offer the opportunity to work with more than one injured person with an added level of privacy. The current building, at 135 square feet, is very small when we have injured people, along with their family and patrollers working with them. More than one injury at a time currently poses some challenges.
- The new Ace Roofing Ski Patrol Clinic at Great Divide will allow some additional privacy when arriving at the clinic. Currently, toboggans are front and center at the base area. The new building, to the west of the Belmont and Good Luck lifts will have direct access from most of the slopes without having to run through the base area and by the lift lines.
- Finally, the new clinic building will provide more training space for the patrol. Currently, new patrollers go through much of their training in the bar area of Great Divide (while the ski area is closed). The new clinic building will provide the opportunity for a training room above the treatment area which will be much more conducive to honing existing skills and learning new techniques.
Further, when Great Divide offers summer activities, the new Ace Roofing Ski Patrol Clinic at Great Divide will provide summertime outdoor emergency care services through the new clinic.
Even with all that, the new clinic building is not fancy. It is a simple 20 X 40 shed-style building covering two levels. It will have a metal roof and metal siding. We are well-supported by Great Divide Ski Area with an agreement to secure the land, utilities and provide for ongoing maintenance, insurance and taxes.
Build the Clinic! Help Keep Fun Safe on the Hill!
Thank you for your support for the new ski patrol clinic building. You can help by donating to the Foundation here. As a charitable, non-profit organization, your donations are tax-deductible. Consult a tax professional for more details.

